Az értékesítő:
Borosné Hajnalka
+36 70 649 7985

Eladó családi ház Kecskemét, 89 900 000 Ft, 96 négyzetméter

89 900 000 Ft
családi ház, 96 négyzetméter
Építőanyag:
Tégla
Egész szobák:
4
Fűtés módja:
Gáz
Ingatlan állapota:
Épülő
Azonosító:
11607241
Értékesítés típusa:
eladó
Ingatlan típusa:
családi ház
Jelleg:
Családi ház
Település:
Kecskemét
Alapterület:
96
Telekterület:
620
Ár:
89 900 000 Ft
Szintek száma:
Földszintes
Fűtés jellege:
Cirkó
Kor:
Új építésű
Telekterület típusa:
négyzetméter
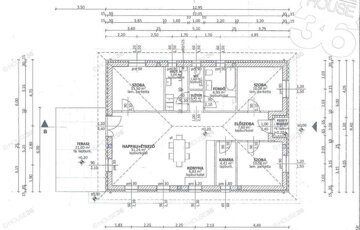
Építkezzen Kecskemét vonzáskörzetében a közkedvelt Helvécián! ELADÓ egy új építésű családi ház aszfaltozott út mellett lévő 620 m2-es önállósarki telken. Jellemzői: - Várható átadás: 2026. október - Telek mérete: 620 m2 - Összközműves - Lakótér: 96,76 m2 - Terasz: 21 m2 - Helyiségek: Nappali-étkező-konyha + 3 szoba, kamra, fürdőszoba, külön mosdó, háztartási helyiség - Tégla építésű (+ tégla válaszfalak) - Külső nyílászárók: fehér műanyag ablakok redőnnyel - Bejárat ajtó: fehér műanyag hőszigetelt - Beltéri ajtók (választható): 80.000,-/db - Fűtés: padlófűtés - Burkolatok: hideg -és meleg (választható): 9.000,-/m2 - Egyéb extrák: - 2,5 kW napelem - 3,5 kW-os hűtő-fűtő klíma - Kerítés - Választható: fedett gépkocsi beálló v. garázs (az ár nem tartalmazza!) Figyelem az adatlap megbízónktól kapott adatok alapján készült, pontosságáért felelősséget nem tudunk vállalni! Szolgáltatásaink Kereső ügyfeleink számára INGYENESEK! Amennyiben eladó-kiadó ingatlana van vagy finanszírozási megoldást keres, hívjon, megtaláljuk a legjobb lehetőséget Önnek! A HOUSE36 kínálatában található összes ingatlannal kapcsolatban tudok felvilágosítást nyújtani! Hívjon bizalommal! Az iroda legfrissebb, aktuális kínálatát a HOUSE36 saját weboldalán találja!
https://ingatlanok.hu/elado/haz/kecskemet/90-millio-ft;96-negyzetmeter;4-szoba;cirko-futes/11607241