Eladó lakás Kecskemét 73 999 999 Ft

Leírás

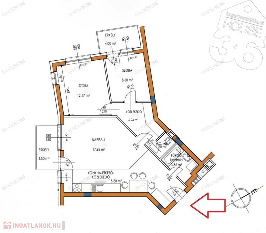
Kecskeméten, a Balaton utcában, 2015-ös építésű, szigetelt társasházban lévő, 65 m2-es, nappali +2 szobás, II. emeleti, 2 erkélyeslakás ELADÓ garázzsal, saját tárolóval!!

Jellemzők:

- 2015-ös építésű, kedvelt lakópark
- homlokzat szigetelt
- beépített konyhabútor gépekkel
- előszoba szekrény
- parkettás szobák +tágas nappali
- nagyon kedvező rezsi költség
- gáz-cirkó fűtés
- 2 db erkély + 8 m2
- klíma
- műanyag nyílászárók redőnnyel, szúnyoghálóval
- földszintről induló lift
- mélygarázs, további 6.000.000 Ft
- saját tároló további 4.000.000Ft
- alacsony rezsi


Figyelem! Az adatlap megbízónktól kapott adatok alapján készült. Pontosságáért felelősséget nem tudunk vállalni!
Amennyiben a hirdetés felkeltette az érdeklődését és kérdése lenne a lakással kapcsolatban, akkor kérem forduljon hozzám bizalommal!
Az iroda legfrissebb, aktuális kínálatát a HOUSE36 saját weboldalán találja!

Lakás részletei

Ár: 73 999 999 Ft
Méret: 65 négyzetméter
Azonosító: 11607249
Irodai azonosító: 3621251-5156662
Emelet: 4. emelet
Építőanyag: Tégla
Fűtés jellege: Cirkó
Ingatlan állapota:
Építési év: 50 évesnél régebbi
Egész szobák: 3

Egyéb jellemzők

  • Erkély
  • Lift

Térkép