Eladó családi ház Kecskemét 80 000 000 Ft

Leírás

​Kecskeméten az egész család számára tökéletes kényelmet biztosító, remek elrendezésű, új építésű családi ház csak önre vár.



A 4 szoba minden családtagnak biztosít egy kis elvonulási lehetőséget.
A kényelmes, tágas nappaliból és a hálószobából is a fedett teraszra léphet ki.

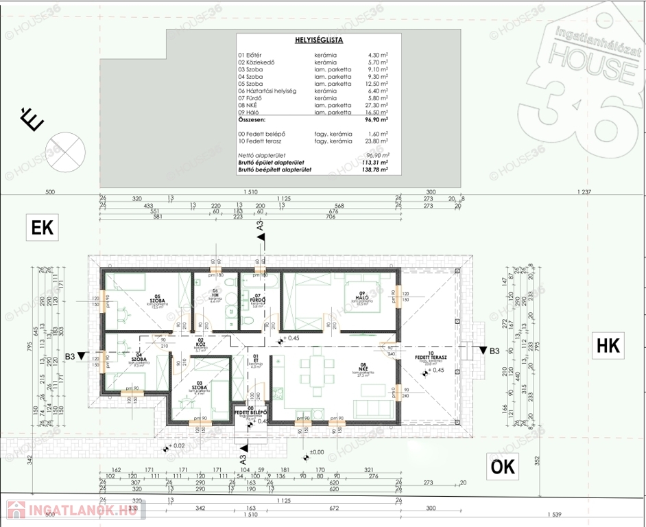
- 96,9 m2 nettó lakótér
+ 1,6 m2 fedett belépő
+ 24,4 m2 fedett terasz
- 138,78 bruttó alapterület
- 575 m2 telek


- garázs
- hőszivattyú
- padlófűtés
- 4 szoba
- gardrób
- nagy nappali konyhával, étkezővel
- háztartási helyiség
- plusz külön wc
- energia takarékos
- 2026 év végi átadás

Választható burkolatok, színek, nyílászárók, szaniterek.
Hívjon.Nézzük meg a minta házakat akár hétvégén is.

A HOUSE36 kínálatában lévő összes ingatlannal kapcsolatban tudok felvilágosítást nyújtani.
Szolgáltatásaink kereső ügyfeleink részére ingyenesek.
Az iroda legfrissebb, aktuális kínálatát a HOUSE36 saját weboldalán találja!

Családi ház részletei

Ár: 80 000 000 Ft
Méret: 96 négyzetméter
Azonosító: 11563996
Irodai azonosító: 3620451-5031668
Telek: 575 négyzetméter
Ingatlan állapota: Épülő
Jelleg: családi ház
Építőanyag: Könnyűszerkezetes
Fűtés jellege: Egyéb
Kor: Új építésű
Szintek száma: Földszintes
Egész szobák: 4

Térkép