Eladó családi ház Kecskemét 80 000 000 Ft

Leírás

Kényelmes, nagy, új építésű családi ház egy remek lakóparkban ELADÓ!
Alkalmas 3 %-os hitelre és csok-ra is.


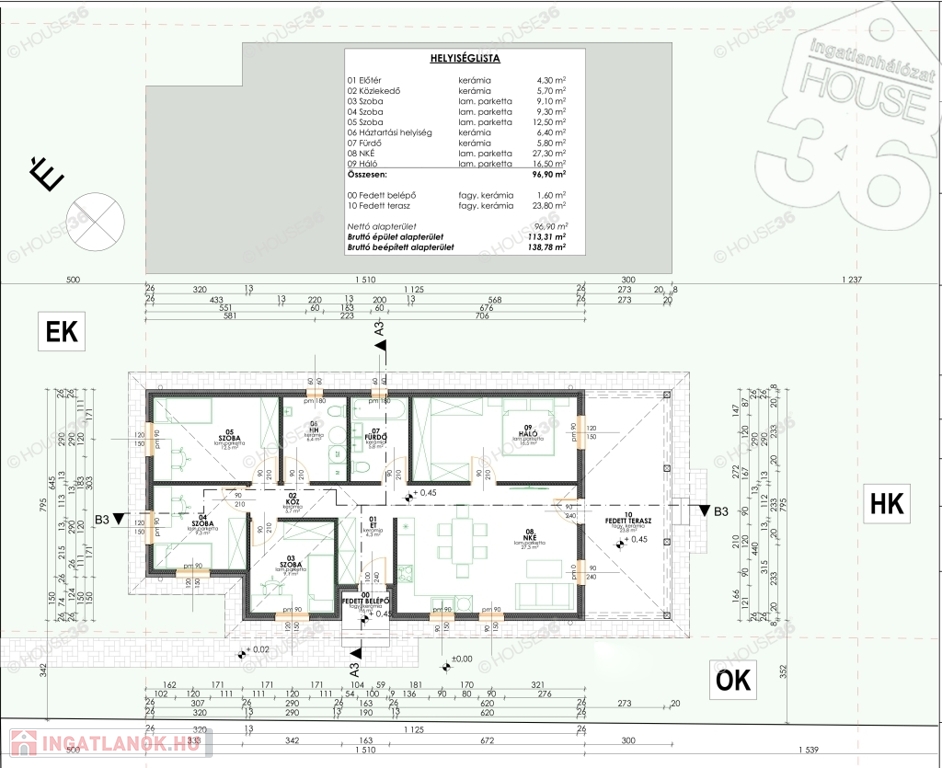
- 96,9 m2 nettó lakótér
+ 1,6 m2 fedett belépő
+ 24,4 m2 fedett terasz
- 575 m2 telek

- 4 szoba
- 2 Wc
- 26 m2 fedett terasz
- fedett belépő
- nagy nappali,konyha ,étkező
- 138.78 m2 bruttó
- padlófűtés
- hőszivattyú
Nézzük meg akár hét végén is minta házainkat.






Választható színek, szaniterek, nyílászárók, burkolatok.

Műszaki tartalomért hívja értékesítőinket.
További tájékoztatásokért várjuk önt irodáinkban.

A HOUSE36 kínálatában lévő összes ingatlannal kapcsolatban tudok felvilágosítást nyújtani.
Szolgáltatásaink kereső ügyfeleink részére ingyenesek.
Az iroda legfrissebb, aktuális kínálatát a HOUSE36 saját weboldalán találja!

Családi ház részletei

Ár: 80 000 000 Ft
Méret: 96 négyzetméter
Azonosító: 11563995
Irodai azonosító: 3620452-5031669
Telek: 575 négyzetméter
Ingatlan állapota: Épülő
Jelleg: családi ház
Építőanyag: Könnyűszerkezetes
Fűtés jellege: Egyéb
Kor: Új építésű
Szintek száma: Földszintes
Egész szobák: 4

Térkép